3 pokoje, dwustronne, po remoncie

Mieszkanie na sprzedaż
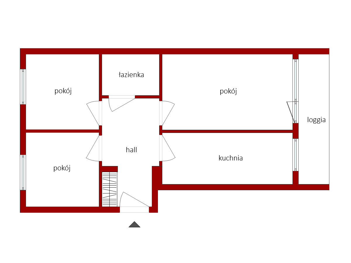
1 350 000,00 PLN, Pow. 58,30 m2
Drukuj ofertę
  • Typ nieruchomości: Mieszkanie
  • Powierzchnia : 58,30 m2
  • Typ transakcji : sprzedaż
  • Liczba pokoi : 3
  • Lokalizacja : Warszawa Śródmieście Nowe Miasto , Franciszkańska
  • Rok budowy : 1963
  • Piętro: 1 na 3
  • Numer oferty : 674613
  • Cena za m2 : 23 156,09 PLN

3 pokoje z balkonem, rozkładowe, dwustronne - Śródmieście

Na sprzedaż nieruchomość zwyjątkowym adresem, który łączy prestiż z komfortem codziennego życia. Położona w jednej z najbardziej pożądanych lokalizacji stolicy, przy ulicy Franciszkańskiej 3 w pobliżu Starego Miasta, oferuje zarówno bliskość historycznych zabytków, jak i nowoczesnych udogodnień.
Mieszkanie o powierzchni 58 m² znajduje się na pierwszym piętrze kameralnego, trzypiętrowego budynku z 1963 roku. Przestrzeń została zaprojektowana z myślą o wygodzie i funkcjonalności:


  • Trzy przestronne pokoje dają możliwość dowolnej aranżacji, dostosowanej do indywidualnych potrzeb mieszkańców.

  • Osobna, widna kuchnia została w pełni wyposażona w nowoczesny sprzęt AGD, co pozwala cieszyć się komfortem gotowania na co dzień.

  • Łazienka z wanną i funkcją prysznica łączy wygodę relaksu z praktycznymi rozwiązaniami.

  • Duża piwnica, która zapewnia dodatkową przestrzeń do przechowywania.


Wnętrza mieszkania zachowały swój wyjątkowy charakter, który nawiązuje do historycznego klimatu lokalizacji. Stonowana kolorystyka i subtelne elementy wykończenia pozwalają stworzyć przestrzeń przytulną, a zarazem funkcjonalną - gotową do indywidualnej aranżacji.

Lokalizacja, która zachwyca

Mieszkanie znajduje się w bezpośrednim sąsiedztwie Starego i Nowego Miasta - jednego z najpiękniejszych zakątków Warszawy. W zasięgu krótkiego spaceru znajdziesz klimatyczne kawiarnie, renomowane restauracje serwujące kuchnie z całego świata, galerie sztuki, teatry oraz liczne punkty usługowe.
Bliskość Bulwarów Wiślanych, Parku Fontann czy Multimedialnego Parku Krasińskich zapewnia szerokie możliwości rekreacyjne. Jednocześnie świetna komunikacja miejska pozwala na szybki i wygodny dojazd do każdej części miasta.

Dla kogo?

To mieszkanie będzie doskonałym wyborem dla osób, które cenią sobie bliskość miejskiego życia, ale jednocześnie szukają spokojnego azylu w sercu stolicy. Idealne zarówno dla rodzin, par, jak i inwestorów poszukujących lokalu w prestiżowej lokalizacji.

Gotowe do wprowadzenia!
Nie musisz martwić się o dodatkowe nakłady finansowe - mieszkanie jest gotowe do zamieszkania. To idealna okazja, by zamieszkać w miejscu, które łączy historyczny klimat Warszawy z nowoczesnym stylem życia.

Zapraszam do kontaktu i na prezentację tego wyjątkowego mieszkania!

  • LOFT51 Nieruchomości
  • ul. Walecznych 36 lok. 1A
  • 03-916 Warszawa
  •   +48 221 023 820