Apartament 3 lub 4 pokoje | Bielany Żoliborz

Mieszkanie na sprzedaż
2 481 725,00 PLN, Pow. 93,65 m2
Drukuj ofertę
  • Typ nieruchomości: Mieszkanie
  • Powierzchnia : 93,65 m2
  • Typ transakcji : sprzedaż
  • Liczba pokoi : 3
  • Lokalizacja : Warszawa Bielany , Gdańska
  • Rok budowy : 2025
  • Piętro: 1 na 2
  • Numer oferty : 34964532639
  • Cena za m2 : 26 500,00 PLN

Prezentujemy Państwu nowoczesne mieszkanie w stanie deweloperskim, położone w atrakcyjnej lokalizacji blisko parku Stawy Kellera.

NIERUCHOMOŚĆ

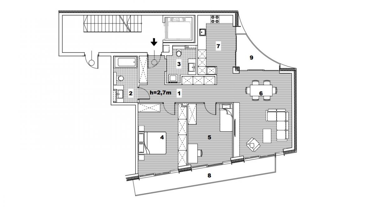
Prezentowana nieruchomość to mieszkanie o powierzchni 94 metrów kwadratowych znajdujące się na 1 piętrze budynku. Składa się ono z salonu, osobnej kuchni, dwóch sypialni, hallu oraz dwóch łazienek. Możliwość wydzielenia 4 pokoju z kuchni.
Z mieszkania wychodzą dwa balkony, jeden na stronę wschodnią, drugi na zachodnią.

Mieszkanie o funkcjonalnym układzie, zapewniający komfortowe warunki do własnej aranżacji. Duże okna zapewniają naturalne doświetlenie wnętrz, a z okien rozpościera się widok na zieleń. Idealne dla osób ceniących sobie bliskość natury.

Miejsce parkingowe w garażu podziemnym oraz komórka lokatorska dodatkowo płatne.

ATUTY NIERUCHOMOŚCI

- kameralny apartamentowiec
- lokalizacja na pograniczu Starego Żoliborza i Bielan
- bliskość terenów zielonych oraz szybki dojazd do centrum
- możliwość wydzielenia 4 pokoju

LOKALIZACJA

Apartamentowiec znajduje się na pograniczu Żoliborza i Starych Bielan. Bliskość terenów zielonych, Stawów Kellera, Dolinki Marymonckiej, Parku Kaskada oraz Lasu Bielańskiego. Dogodna lokalizacja oraz bliskość metra daje łatwy i szybki dostęp do centrum Warszawy.

  • LOFT51 Nieruchomości
  • ul. Walecznych 36 lok. 1A
  • 03-916 Warszawa
  •   +48 221 023 820