3 pokoje | apartamentowiec | Bielany Żoliborz

Mieszkanie na sprzedaż
2 273 170,00 PLN, Pow. 85,78 m2
Drukuj ofertę
  • Typ nieruchomości: Mieszkanie
  • Powierzchnia : 85,78 m2
  • Typ transakcji : sprzedaż
  • Liczba pokoi : 3
  • Lokalizacja : Warszawa Bielany , Gdańska
  • Rok budowy : 2025
  • Piętro: 1 na 2
  • Numer oferty : 34964532638
  • Cena za m2 : 26 500,00 PLN

Prezentujemy Państwu mieszkanie na sprzedaż w kameralnym apartamentowcu przy Stawach Kellera.

NIERUCHOMOŚĆ

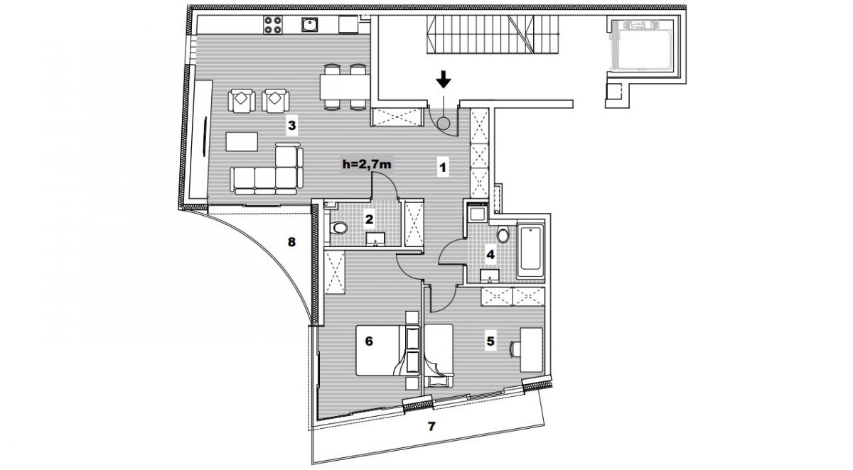
Prezentowana nieruchomość to mieszkanie o powierzchni 86 metrów kwadratowych znajdujące się na 1 piętrze budynku. Składa się ono z salonu z kuchnią, dwóch sypialni, hallu oraz dwóch łazienek.

Z mieszkania wychodzą dwa balkony, jeden na stronę południową, drugi na południowo wschodnią. Dzięki dużym przeszkleniom mieszkanie jest bardzo dobrze doświetlone, a z okien rozpościera się widok na zieleń.

ATUTY NIERUCHOMOŚCI

- kameralny apartamentowiec
- lokalizacja na pograniczu Żoliborza i Bielan
- bliskość terenów zielonych oraz szybki dojazd do centrum

Miejsce parkingowe w garażu podziemnym oraz komórka lokatorska dodatkowo płatne.

LOKALIZACJA

Apartamentowiec znajduje się na pograniczu Żoliborza i Starych Bielan. Blisko terenów zielonych, Stawów Kellera, Dolinki Marymonckiej, Parku Kaskada oraz Lasu Bielańskiego. Dogodna lokalizacja oraz bliskość metra daje łatwy i szybki dostęp do centrum Warszawy.

  • LOFT51 Nieruchomości
  • ul. Walecznych 36 lok. 1A
  • 03-916 Warszawa
  •   +48 221 023 820